bien-sur avec des Altec dedans et au dessus c'est encore mieux
Le forum Audiovintage est privé.
En tant qu'invité, vous avez accès à certaines rubriques uniquement, l'ajout de nouveaux membres n'est pas possible pour le moment.
En tant qu'invité, vous avez accès à certaines rubriques uniquement, l'ajout de nouveaux membres n'est pas possible pour le moment.
Systèmes à Haut-Rendements
-
florent
Re: Systèmes à Haut-Rendements
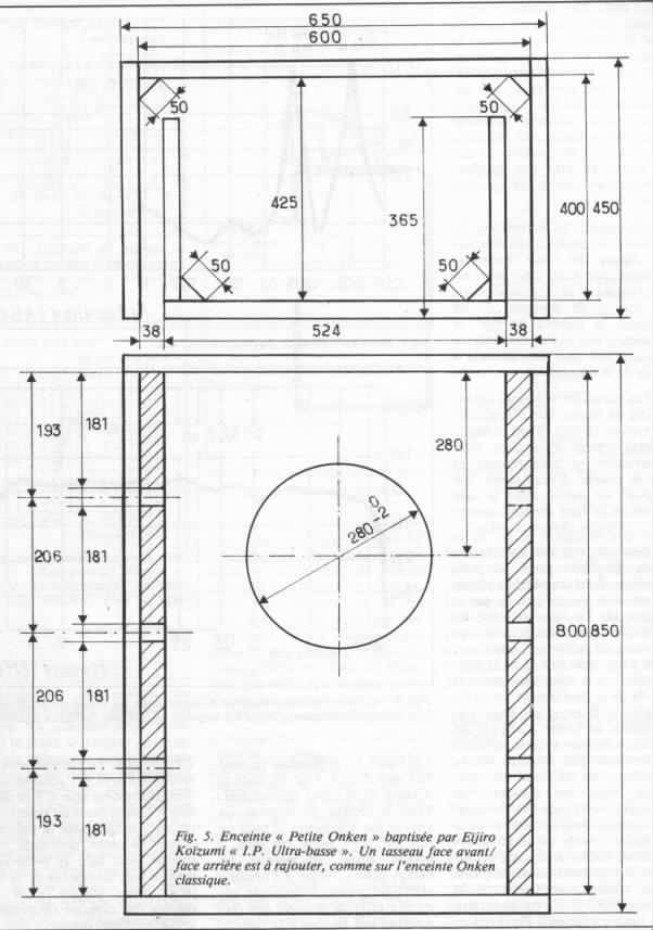
La fabrication de caisson Onken reste une bonne alternative pour un ensemble a haut-rendement!
bien-sur avec des Altec dedans et au dessus c'est encore mieux
bien-sur avec des Altec dedans et au dessus c'est encore mieux
-
Klemp
Re: Systèmes à Haut-Rendements
Tu m' as devancé Jean Michel, j' avais l' intention de leur mettre la Onken sous le nez, mais pas tout de suite....
.
Je tenais d' abord à les travailler au corps, et leur montrer peut-être le modèle mini avant.... avec un 414 éventuellement.....
Enfin, maintenant, ils sont au jus........
Je tenais d' abord à les travailler au corps, et leur montrer peut-être le modèle mini avant.... avec un 414 éventuellement.....
Enfin, maintenant, ils sont au jus........
- Vinc
- Membre no life
- Messages : 4743
- Enregistré le : lun. 9 nov. 2009 19:07
- Localisation : Belgique
Re: Systèmes à Haut-Rendements
par contre la j'ai une question... comment ca marche?
Pourquoi un caisson du genre Onken donne un si bon rendement?
Pourquoi un caisson du genre Onken donne un si bon rendement?
-
Klemp
Re: Systèmes à Haut-Rendements
Vinc a écrit :par contre la j'ai une question... comment ca marche?
Pourquoi un caisson du genre Onken donne un si bon rendement?
Parce que la charge et l' accord bass-reflex avec les Altec's 416 ou 414 a été bien calculé....
Les Altec's 416 et 414 ont un rendement de l' ordre 100 db/1w/1m, avec cette charge, les 416 restent assez rapides, moins que dans une Voix du Théatre, mais descendent plus bas.....
- Vinc
- Membre no life
- Messages : 4743
- Enregistré le : lun. 9 nov. 2009 19:07
- Localisation : Belgique
Re: Systèmes à Haut-Rendements
ha ca reste du bass refflex alors je comprend bien 
en gros c'est surtout les HP qui sont exceptionnels
en gros c'est surtout les HP qui sont exceptionnels
-
Klemp
Re: Systèmes à Haut-Rendements
Vinc a écrit :ha ca reste du bass refflex alors je comprend bien
en gros c'est surtout les HP qui sont exceptionnels
Cet ensemble est un excellent compromis....
L' enceinte Onken existe en mini, grande et double....
- Vinc
- Membre no life
- Messages : 4743
- Enregistré le : lun. 9 nov. 2009 19:07
- Localisation : Belgique
Re: Systèmes à Haut-Rendements
hélas le budget du HP fait mal 
mais ca reste a réfléchir
dans un futur pas très proche hélas
mais ca reste a réfléchir
-
Klemp
Re: Systèmes à Haut-Rendements
Mes 416 8Z ( équivalents des 416 8A ) m' ont couté 110 euros piece avec le port.... des US.....
Mais pour le reste, on installe des chambres de compression.....et là, le budget n' est pas tout à fait le même...
Mais pour le reste, on installe des chambres de compression.....et là, le budget n' est pas tout à fait le même...
- Vinc
- Membre no life
- Messages : 4743
- Enregistré le : lun. 9 nov. 2009 19:07
- Localisation : Belgique
Re: Systèmes à Haut-Rendements
ha les seuls que j'avais vu c'étaient des 8B a 457$
- LeTOF
- Membre éminent
- Messages : 1804
- Enregistré le : jeu. 12 nov. 2009 20:16
- Localisation : Oise
Re: Systèmes à Haut-Rendements
Oui,c'est bien du bass-reflex mais si tu additione la surface des évents latéraux tu te retrouve avec une surface bien plus importante qu'avec nos classique tubes!!!!Vinc a écrit :ha ca reste du bass refflex alors je comprend bien
en gros c'est surtout les HP qui sont exeptionnels
C'est super...............
